KRD Nihombashi
1年半ほど前に協力させていただいたSHIP ARCHITECTSの作品、KRD Nihombashiをこのブログで紹介しようと思います。弊社やSHIP ARCHITECTSのように小さな事務所は、複数のプロジェクトの現場、プレゼ、実施図面提出などが重なると徹夜が続き、精神的に肉体的にボロボロになってしまうことがあります。そんな時、キャドなどの職場環境を統一させることでお互いを助け合うことのできる体制を弊社とSHIPの間で構築しています。KRD Nihombashiの現場は怒涛の現場だったため、SHIPよりSOSが発信!弊社がお手伝いすることになりました。
KRD NIhombashiは一般的にいう人間ドッグの最新版です。健康への第一歩は、自分のカラダが傾いていることを知ることから始まる、そして、その傾きを知ることはカラダの現状を把握すること。カラダのわずかな傾きが真っ先に現れる、歯 (口腔環境) と目、血液に焦点を合わせた健診を行っているそうです。下の写真は「歯」の健診をする診察室と「Why:なぜ、そして、How:どうやって健康になるか」をテーマにしたライブラリーが写っています。
ロビーではSHIP ARCHITECTSとE&Yが作った家具が並べられています。とても居心地がよくホテルのロビーにでもきたかしらと錯覚に陥ります。いえいえ、ここは人間ドックですよ・・・
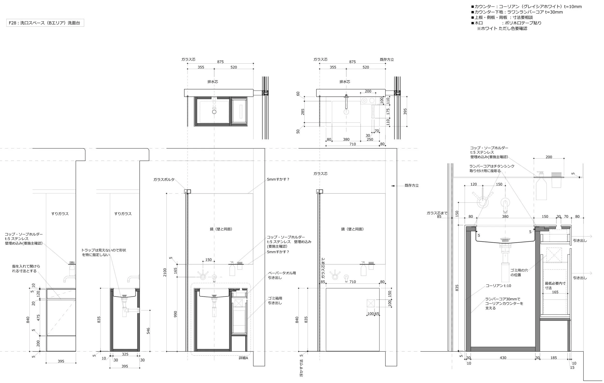
弊社は黒スチールで出来たライブラリー棚、洗口スペース、診察室の棚、など製作家具の図面と展開図をメインに手伝いました。下のような図面やスケッチをひたすら何十枚も書くと言う作業です。提案したディスペンサーは結局実現しませんでしたが、その他はほぼほぼ図面通り。2次元のものが3次元になる時の喜びです。見える場所に余計な線を入れず、ティッシュの交換とゴミの回収をどうするかを考えるのが楽しかったこと覚えています。
KRD Nihombashiをお手伝いした期間はとても短かったのですが、かなり濃密な数ヶ月となりました。大規模な内装の物件をしたことがない弊社としてはかなり貴重な経験です。弊社のプロジェクトリストにもアップしようと思います!
